Kenmerken Object

  • StatusVerkocht
  • Vraagprijs€ 375.000,- k.k.
  • Woonoppervlakte108 m2
  • SoortEengezinswoning
  • Bouwjaar1989

Omschrijving

Ruime eengezinswoning in kindvriendelijke wijk Stadspolders Deze keurige eengezinswoning ligt in een rustige straat in de gewilde en kindvriendelijke wijk Stadspolders. De woning is goed onderhouden en ideaal voor jonge gezinnen. De woning beschikt over een tuingerichte woonkamer en een moderne keuken uit 2019. Op de eerste verdieping bevinden zich drie slaapkamers en een badkamer. De tweede verdieping biedt een vierde slaapkamer en veel bergruimte. De zonnige tuin op het noordwesten is voorzien van een schuur en achterom. Dankzij de 10 zonnepanelen ...

Plattegronden ( 12)

LOCATIE

Omschrijving

Ruime eengezinswoning in kindvriendelijke wijk Stadspolders

Deze keurige eengezinswoning ligt in een rustige straat in de gewilde en kindvriendelijke wijk Stadspolders. De woning is goed onderhouden en ideaal voor jonge gezinnen.

De woning beschikt over een tuingerichte woonkamer en een moderne keuken uit 2019. Op de eerste verdieping bevinden zich drie slaapkamers en een badkamer. De tweede verdieping biedt een vierde slaapkamer en veel bergruimte. De zonnige tuin op het noordwesten is voorzien van een schuur en achterom. Dankzij de 10 zonnepanelen heeft de woning energielabel A. De eigen grondoppervlakte bedraagt 125 m².

De ligging is bovendien zeer aantrekkelijk: aan de buitenrand van Stadspolders woont u rustig, maar toch dichtbij alle voorzieningen. Het centrum van Dordrecht is in circa 10 minuten fietsen via de Wantijdijk bereikbaar. Wijkvoorzieningen zoals winkelcentrum Bieshof, het NS-station en het gezondheidscentrum zijn dichtbij, evenals de uitvalswegen naar de N3. Voor ontspanning en recreatie ligt de natuur letterlijk om de hoek, met de Dordtse Biesbosch, de Merwelanden en het omliggende poldergebied.

Indeling:

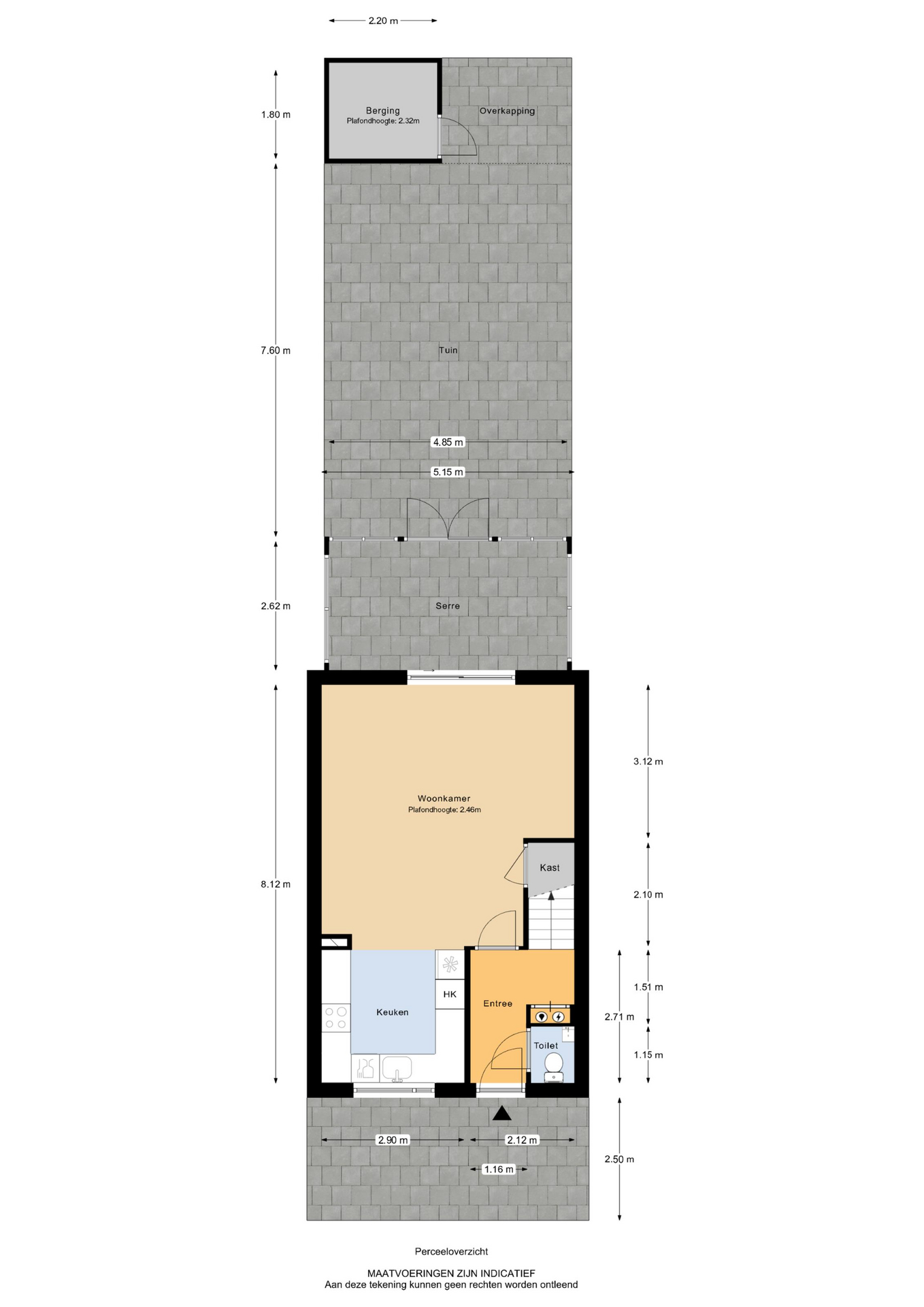
Begane grond
Entree met hal en meterkast. De deels betegelde toiletruimte is voorzien van een fonteintje.
De ruime, lichte woonkamer heeft een laminaatvloer, veel lichtinval door de schuifpui en extra ramen, een bergkast en een open verbinding naar de moderne keuken aan de voorzijde. Via de schuifpui is de serre bereikbaar, die toegang geeft tot de achtertuin.
Moderne U-keuken uit 2019, uitgerust met gaskookplaat, afzuigkap, combi oven/magnetron, koelkast, vriezer, vaatwasser en Quooker.

Eerste verdieping
Overloop met trap naar de tweede verdieping.
Slaapkamer 1 aan de voorzijde
Slaapkamer 2 aan de achterzijde
Slaapkamer 3 aan de achterzijde
Badkamer volledig betegeld, voorzien van wastafel, douche en tweede toilet.

Tweede verdieping
Overloop met toegang tot de bergzolder en de technische ruimte met CV-combiketel, mechanische ventilatie-unit en aansluitingen voor wasmachine en droger.
Slaapkamer 4 met dakraam en bergruimte achter de knieschotten. De gehele verdieping heeft een nette laminaatvloer.

Tuin
Voortuin met bestrating.
Diepe achtertuin met bestrating en plantenborders, gunstig gelegen op het noordwesten. Achterin staat een stenen berging, naast een overkapping.

Algemeen:

- Woonoppervlakte: 108 m²
- Inhoud: 373 m³
- Perceel: 125 m²
- Bouwjaar: 1989
- Energielabel: A
- Zonnepanelen: 10 stuks
- De woning is geheel voorzien van dubbel glas
- Cv-ketel: Remeha Avanta 2008
- Oplevering: in overleg

Stad & Land NVM Makelaars is de makelaar van de verkoper. Wij adviseren u uw eigen NVM makelaar in te schakelen om uw belangen te behartigen bij de aankoop van dit object.

Deze informatie is door ons met de nodige zorgvuldigheid samengesteld. Onzerzijds wordt echter geen enkele aansprakelijkheid aanvaard voor enige onvolledigheid, onjuistheid of anderszins, dan wel de gevolgen daarvan.

Overdracht

  • StatusVerkocht
  • Vraagprijs€ 375.000,- k.k.

Bouwvorm

  • Soort objectWoonhuis
  • Soort woningEengezinswoning
  • Type woningTussenwoning
  • Bouwjaar1989
  • BouwvormBestaande bouw
  • LiggingenIn woonwijk

Indeling

  • Woonoppervlakte108 m2
  • Perceeloppervlakte125 m2
  • Inhoud373 m3
  • Aantal kamers5
  • Aantal slaapkamers4
  • Aantal badkamers1

Energie

  • VerwarmingCV ketel
  • C.V.-KetelRemeha Avanta
  • Bouwjaar C.V.-Ketel2008
  • WarmwaterCV ketel
  • IsolatieDubbelglas
  • CombiketelJa
  • BrandstofGas
  • EigendomEigendom

Buitenruimte

  • TuinAchtertuin, Voortuin
  • HoofdtuinAchtertuin
  • Oppervlakte62 m2
  • Ligging hoofdtuinNoordwest
  • AchteromJa
  • Kwaliteit tuinNormaal

Bergruimte

  • Schuur / BergingVrijstaand steen
  • Totaal aantal1

Parkeergelegenheid

  • Parkeer faciliteitenOpenbaar parkeren
  • GarageGeen garage

Dak

  • Soort dakZadeldak
  • Materiaal dakPannen

Overig

  • Permanente bewoningJa
  • Onderhoud binnenGoed
  • Onderhoud buitenGoed
  • Huidig gebruikWoonruimte

LOCATIE OP DE KAART